この物件は ? 人の方が見ています
NEW
中古 一戸建て
値下げ
松本市寿台 中古 戸建て【価格改定】【多目的スペースとして幅広く利用可能!リフォーム済店舗付5DK】
1,700万円
月々の返済額
ローンシミュレーション
所在地
長野県松本市寿台6丁目
価格
1,700万円
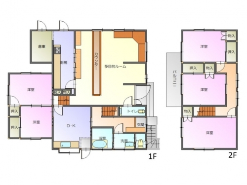
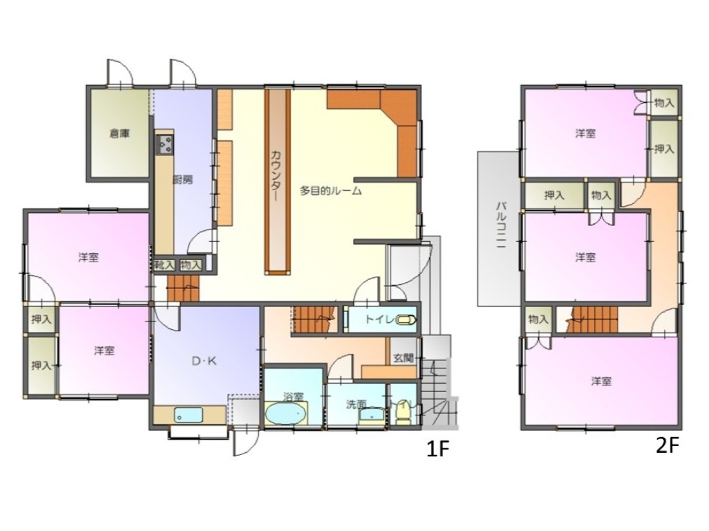
間取り
5SDK
築年数
1972年07月
(築53年)
土地面積
268.50m²(81.22坪)
建物面積
131.28m²(39.71坪)
交通
JR篠ノ井線 / 村井駅 より 徒歩35分
アルピコ交通 寿台線 寿台 より 徒歩5分
アルピコ交通 寿台線 寿台 より 徒歩5分
物件管理番号: 21512
所在地
長野県松本市寿台6丁目
価格
1,700万円
交通
JR篠ノ井線 / 村井駅 より 徒歩35分
アルピコ交通 寿台線 寿台 より 徒歩5分
アルピコ交通 寿台線 寿台 より 徒歩5分
土地面積
268.50m²(81.22坪)
建物面積
131.28m²(39.71坪)
築年数
1972年07月
(築53年)
間取り
5SDK
建築構造
木造(亜鉛メッキ鋼板・セメント瓦葺)
現況
空家
駐車場
3台
土地権利
所有権
地目
宅地
建ぺい率
50%
容積率
80%
用途地域
第1種低層住居専用地域
都市計画
市街化区域
小学校区
明善小 1100m(徒歩 14 分、自転車 5 分、車 3 分)
中学校区
明善中 1400m(徒歩 18 分、自転車 6 分、車 3 分)
上水道
公営水道
下水道
公共下水
設備
電気
追焚機能 浴室に窓 バス1坪以上 洗浄便座 トイレ2か所 シャンプードレッサ 室内洗濯機設置可
全居室収納有り
ルーフバルコニー
モニタ付インターホン ディンプルキー
全居室フローリング
駐車場3台分
備考
《価格改定!》
デリシア徒歩7分、公園至近の好立地に佇む、2025年に大規模リフォーム済の店舗スペース付き5DK!
店舗スペースは多目的ルームとして、カフェ経営や趣味空間など、暮らしをより豊かに彩る空間に。
(リフォーム内容…キッチン・トイレ・洗面台・エアコン・インターホン新設、クロス・床張替、外壁・屋根塗装、二重サッシ窓へ取替 等)
デリシア徒歩7分、公園至近の好立地に佇む、2025年に大規模リフォーム済の店舗スペース付き5DK!
店舗スペースは多目的ルームとして、カフェ経営や趣味空間など、暮らしをより豊かに彩る空間に。
(リフォーム内容…キッチン・トイレ・洗面台・エアコン・インターホン新設、クロス・床張替、外壁・屋根塗装、二重サッシ窓へ取替 等)
その他の法令上の制限
建築基準法22条区域、松本市景観計画、高さ制限10m
取引形態
一般
引き渡し時期
即時
情報登録日
2026年01月29日
更新予定日
2026年03月30日
株式会社セイブ
〒390-0833長野県松本市双葉24-10
電話番号:0263-27-9910
FAX番号:0263-27-9911
営業時間:午前9時30分~午後6時30分
定休日:毎週水曜
免許番号:長野県知事免許(8)第3568号
物件周辺の地図
この物件の条件に近い物件
NEW
一戸建て
松本市寿北 中古 戸建て【2020年フルリフォーム済!イオン南松本店やツルヤまで車7分】
所在地
長野県松本市寿北五丁目
販売価格
2,100万円
建物面積
75.23m²
NEW
一戸建て
松本市野溝西 中古 戸建て【スーパーや小中学校が徒歩10分圏内!遠赤外線暖炉付き♪】
所在地
長野県松本市野溝西一丁目
販売価格
2,980万円
建物面積
159.84m²
NEW
一戸建て
◆新春キャンペーン対象 3月末まで◆松本市里山辺 新築 戸建て【価格改定】【即入居可!スーパーまで車3分、収納充実♪】
所在地
長野県松本市里山辺
販売価格
3,490万円
建物面積
91.08m²
NEW
一戸建て
◆新春キャンペーン対象 3月末まで◆松本市里山辺 新築 戸建て【即入居可!デリシア車3分、イオンモール車9分で利便性◎】
所在地
長野県松本市里山辺
販売価格
3,520万円
建物面積
65.29m²
ローンシミュレーション
物件の価格
1,700万円
月毎のご返済額
ボーナス払い(×年2回)
年利率
%
ボーナス払い
返済年数
頭金
万円
※ご返済額は目安です。詳細はお問い合わせください。
※不動産物件情報は最新のデータの掲載を心がけていますが、データの書き換えの都合上、売却済みなどの場合はご容赦ください。
※掲載されている不動産物件データが現況と異なる場合は現況を優先します。
※株式会社セイブで取り扱う物件は、株式会社スマイルハウスの建築条件付きとなっております。
